St John’s Wood Park, St John’s Wood NW8
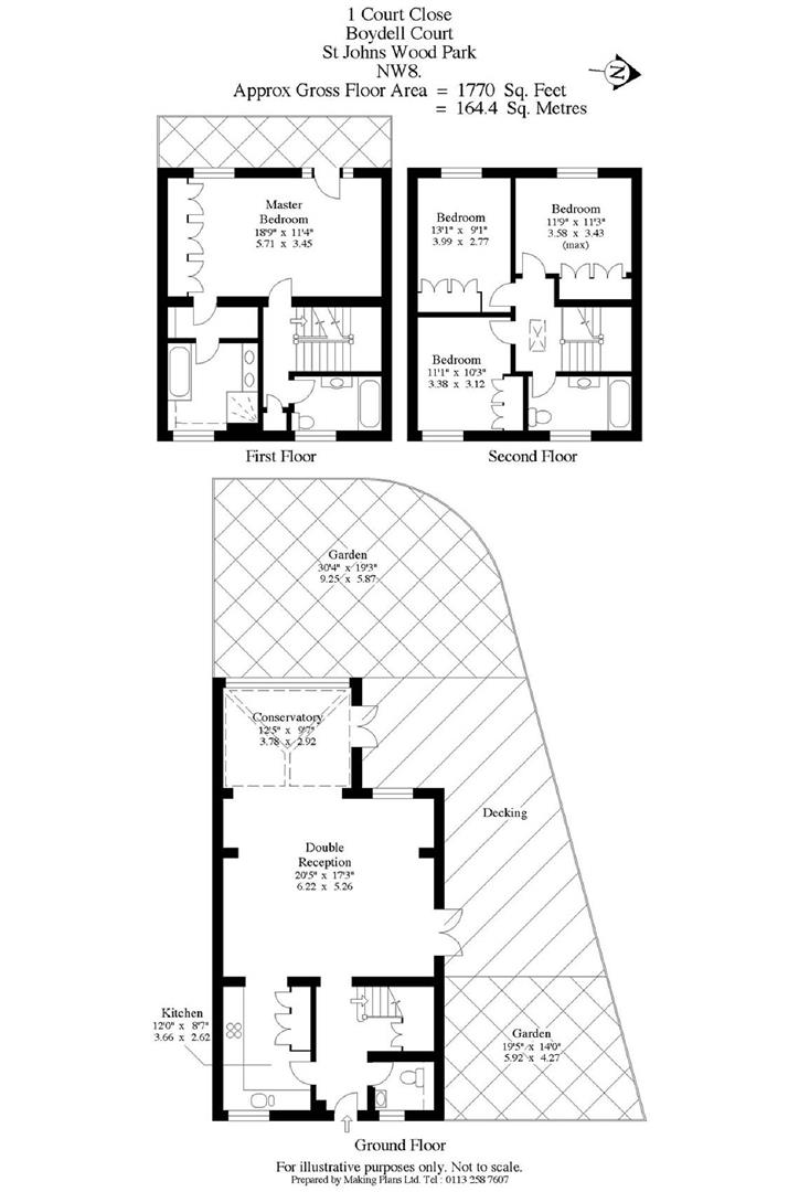
Arranged over three floors and set within a private, gated residential complex, is this beautiful contemporary townhouse, ideally located for the American School and St John's Wood's amenities. This luxury home offers approximately1,770 sq ft/164 sq m of accommodation with open-living areas that lead onto a private garden.
Court Close is set in landscaped communal gardens and offers 24 hour concierge, unreserved off street parking and on-site property management. The nearest tube stations are Swiss Cottage (Jubilee Line) 0.2 miles and St John's Wood (Jubilee line) 0.5 miles.
Court Close is set in landscaped communal gardens and offers 24 hour concierge, unreserved off street parking and on-site property management. The nearest tube stations are Swiss Cottage (Jubilee Line) 0.2 miles and St John's Wood (Jubilee line) 0.5 miles.
Asking Price
£2,608 pw
Location
St John's Wood–NW8
Bedrooms
4
Bathrooms
4
Gallery
View All Images >Location
Interested in this property?
Please contact our team below to find out more about this property and to request a viewing.
+44 (0)20 7722 3322
PROPERTY@ARLINGTONRESIDENTIAL.COM


